Op maat gemaakte moderne villa’s met grond te koop in Aspe en omgeving, Alicante Inland
- Van 379.000€
- Van 379.000€
Overzicht
- 3
- 3
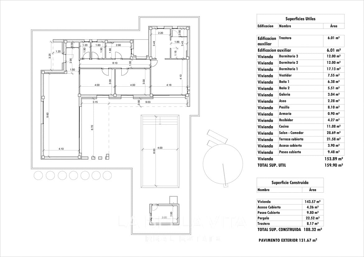
- 188 m²
- 10000+ m²
- 3+
- 2026
Beschrijving
Op maat gemaakte moderne villa’s met grond te koop in Aspe en omgeving, Alicante Inland
Op zoek naar ruimte, privacy, natuur en een moderne woning op maat in een van de meest authentieke regio’s van Spanje? Ontdek onze collectie op maat gemaakte moderne villa’s met grond te koop in Aspe en omgeving, Alicante Inland – een unieke kans om uw droomhuis te creëren op een groot rustiek perceel, omgeven door wijngaarden, amandelboomgaarden en mediterraan platteland.
🏡 10 moderne villamodellen – volledig aan te passen aan uw levensstijl
We werken samen met de beste lokale ontwikkelaars om u 10 verschillende villamodellen aan te bieden, van 2 tot 4 slaapkamers, allemaal met een eigentijds design, uitstekende energie-efficiëntie en afwerking van topkwaliteit.
Kies tussen indelingen met één of twee verdiepingen, met een constructie op basis van massieve plaat of structuur, afhankelijk van het model. Elke woning is volledig aanpasbaar:
✔ Selecteer het aantal slaapkamers en badkamers
✔ Ontwerp uw keuken en open leefruimte
✔ Voeg een privézwembad, solarium, garage of pension toe
✔ Kies afwerkingen, tegels, armaturen en alle persoonlijke accenten
Of u nu een gezellig toevluchtsoord voor twee wilt of een gezinswoning om het hele jaar door van te genieten, wij hebben de perfecte indeling voor u.
🌿 Enorme rustieke percelen in de meest rustige gebieden van Alicante
Alle villa’s zijn gebouwd op legaal rustiek land met percelen vanaf 10.000 m², waarvan ongeveer 2.500 m² zal worden omheind voor privégebruik. Deze percelen bieden volledige privacy, een panoramisch uitzicht en de vrijheid om te genieten van het buitenleven.
U kunt kiezen uit beschikbare percelen in de meest charmante binnenlanden van de Costa Blanca Zuid, waaronder:
Aspe, La Romana, Pinoso, Canalosa, Elche, Hondón de las Nieves en binnenkort meer.

Elk perceel is volledig aangesloten op water, elektriciteit en snel internet. Alle vergunningen worden professioneel afgehandeld – alles is in orde, zodat u met een gerust hart kunt bouwen.
🛠️ Topbouwkwaliteit met wettelijke garanties
Alle villa’s worden opgeleverd met:
- Structuur van gewapend beton
- Thermische isolatie voor optimale energieprestaties
- Dubbele beglazing
- Ingerichte badkamers en keukens
- Porseleinen vloeren en hoogwaardige afwerkingen
- Zonne-water verwarmingssysteem
- Veranda, parkeerplaats buiten en berging inbegrepen, afhankelijk van het model
- 10 jaar structurele garantie
De levering is gepland binnen 12 maanden na de goedkeuring van de licentie, volgens een zelfpromotiemodel, zodat u het proces kunt overzien en uw eigen visie kunt toevoegen.
En ja – we hebben modelwoningen beschikbaar voor bezichtiging, zodat u de kwaliteit uit de eerste hand kunt ervaren.
🍷 Woon dicht bij wijngaarden, bergen en echte Spaanse traditie
Costa Blanca Inland is een verborgen juweeltje – op slechts 30-40 minuten van de zee en de luchthaven van Alicante, maar toch vol authentieke charme.
Leef tussen wijngaarden, olijfgaarden, amandelbomen en traditionele Spaanse dorpjes. Geniet van wekelijkse markten, wijnproeverijen, natuurpaden en een langzamer levenstempo dat aan de kust onmogelijk te vinden is.
Het is ideaal voor:
✔ Vervroegd pensioen in de natuur
✔ Verhuizing met familie
✔ Vakantiehuis met investeringswaarde
✔ Eco-living of off-grid opstellingsmogelijkheden
📍 Strategische locatie in het binnenland met goede verbindingen
- 25-40 km van de mediterrane stranden
- 20-40 km van de luchthaven van Alicante
- 5-10 km naar de historische stad Elche
- Dicht bij traditionele dorpen, natuurparken en essentiële diensten
Dit project combineert de rust van het leven in het binnenland met snelle toegang tot het stadsleven, luchthavens en de kust.
Op maat gemaakte moderne villa’s met grond te koop in Aspe en omgeving, Alicante Inland – een unieke kans die u niet wilt missen. Boek vandaag nog uw bezoek!
Bij LA BELLA VITA Real Estate werken we met een van de grootste databases van nieuwbouwwoningen aan de Costa Blanca en Costa Cálida, waardoor onze klanten volledige toegang hebben tot de beste kansen op de markt. We bieden eerlijk advies, lokale expertise en persoonlijke ondersteuning bij elke stap – en onze service is volledig gratis voor kopers.
Neem vandaag nog contact op om de laatste beschikbaarheid te ontvangen en uw reis te beginnen.
Wat is er in de buurt
Updated on augustus 27, 2025 at 4:55 pmAanvullende informatie
- 🏖 Beach 25 - 40 km
- 🍽️ Bars & Restaurants 2 - 5 km
- 🛒 Supermarkets 2 - 7 km
- 🏥 Hospitals 5 - 10 km
- 🎓 Schools 5 - 10 km
- ✈️ Alicante Airport 25 - 40 km
Energieklasse
- Energieke les: B
- A+
- A
- | Energy class BB
- C
- D
- E
- F
- G
- H
Adres
Openen op Google MapsHypotheek Calculator
- Down Payment
- Loan Amount
- Monthly Mortgage Payment
Vergelijkbare aanbiedingen
Nieuwbouw Fincas te koop in Pinoso, Aspe en omgeving (Alicante Inland)
El Pinoso, Aspe, La Romana, La Canalosa, Elche etc. (Alicante, Spanje)Vraag prijzen en beschikbaarheid aan!
Nieuwbouw Fincas te koop in Alicante Inland (Pinoso, Aspe en omgeving)
El Pinoso, Aspe, La Romana, La Canalosa, Elche etc. (Alicante, Spanje)Vraag prijzen en beschikbaarheid aan!
Nieuwbouw gelijkvloerse landhuizen te koop in Alicante Inland (Pinoso, Aspe en omgeving)
El Pinoso, Aspe, La Romana, La Canalosa, Elche etc. (Alicante, Spanje)Nieuwbouw gelijkvloerse landhuizen te koop in Alicante Inland (Pinoso, Aspe en omgeving)...
Nieuwbouw mediterrane villa’s op rustiek land te koop in Pinoso en omgeving, Alicante binnenland, Spanje
El Pinoso, Aspe, La Romana, La Canalosa, Elche etc. (Alicante, Spanje)Nieuwbouw mediterrane villa’s op rustiek land te koop in Pinoso en omgeving,...
Nieuwbouw mediterrane villa’s op rustiek land te koop in Aspe en omgeving, Alicante, Spanje
El Pinoso, Aspe, La Romana, La Canalosa, Elche etc. (Alicante, Spanje)Vraag prijzen en beschikbaarheid aan!
Nieuwbouw mediterrane huizen op rustiek land te koop in Aspe en omgeving, Alicante, Spanje
El Pinoso, Aspe, La Romana, La Canalosa, Elche etc. (Alicante, Spanje)Nieuwbouw mediterrane huizen op rustiek land te koop in Aspe en omgeving,...


